Buscador de propiedades

Ver resultados en
5491171402124 Llámenos

Departamento 2 amb. en emprendimiento

Venta Cod. 1131-nhdghd


USD 59850 (1131-nhdghd)

Descripción

Código 1131-nhdghd
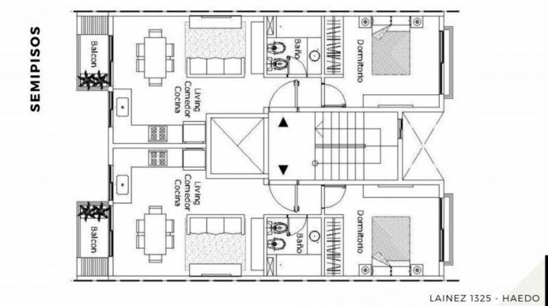
Fecha de inicio prevista: Junio/Julio (etapa preventa) Duración: 18 meses (etapa pozo) -5 PISOS DEPARTAMENTO 2 AMBIENTES, posibilidad de venta de 3 ambientes 80m2 en el ultimo piso Cochera opcional -Semi-pisos con parrilla propia 40m2 -Piso con parrilla propia 80m2 -AMENITIES -Laundry -Terraza compartida -Parrillas para eventos Pisos y terminaciones: -Piso de primera calidad en living y dormitorios. -Baños con cerámicos de alta calidad -Mesada y revestimientos de cocina -Placard con frentes corredizos, interiores de melamina, sector de colgar y cajones. -Frente vidriado en balcones con marcos metálicos. Instalaciones y artefactos: -Cocina: Muebles bajo mesada -Anafe y horno de primera calidad -Bacha de acero inoxidable y mono comando de primera marca. -En baños: Sanitarios con griferias y accesorios completos -Pre-instalación de aire acondicionado por conductos cielorrasos. -Cañería para servicio de cable, telefonía y datos con bocas en área social y dormitorios. -Puertos USB instalados en todas las áreas para carga directa de equipos electrónicos. Formas de pago: 60 al boleto + hasta 24 cuotas fijas USD 50 al boleto + hasta 18 cuotas fijas USD 100 al boleto - 3 descuento


Condiciones

  • Valor:USD 59850

Ubicación:

  • Calle: Lainez 1300 1° B
  • Localidad/Barrio: Haedo
  • Municipio: Morón
  • Provincia: Buenos Aires

Superficies:


Características

  • 40 m² de superficie cubierta
  • 42 m² de superficie total
  • 1 dormitorio/s
  • 1 baño/s completo/s


Ubicación de la propiedad


Departamento 2 amb. en emprendimiento

Código 1131-nhdghd

USD 59850 | Lainez 1300 1° B

Contacto con Susana Pereyra de Roig

Comuníquese telefónicamente: 5491171402124 - 5290-5952 - 5290-5953

Envíenos una consulta por la propiedad 1131-nhdghd

Ingrese los campos requeridos marcados con *

Descripción

Código 1131-nhdghd | Fecha de inicio prevista: Junio/Julio (etapa preventa) Duración: 18 meses (etapa pozo) -5 PISOS DEPARTAMENTO 2 AMBIENTES, posibilidad de venta de 3 ambientes 80m2 en el ultimo piso Cochera opcional -Semi-pisos con parrilla propia 40m2 -Piso con parrilla propia 80m2 -AMENITIES -Laundry -Terraza compartida -Parrillas para eventos Pisos y terminaciones: -Piso de primera calidad en living y dormitorios. -Baños con cerámicos de alta calidad -Mesada y revestimientos de cocina -Placard con frentes corredizos, interiores de melamina, sector de colgar y cajones. -Frente vidriado en balcones con marcos metálicos. Instalaciones y artefactos: -Cocina: Muebles bajo mesada -Anafe y horno de primera calidad -Bacha de acero inoxidable y mono comando de primera marca. -En baños: Sanitarios con griferias y accesorios completos -Pre-instalación de aire acondicionado por conductos cielorrasos. -Cañería para servicio de cable, telefonía y datos con bocas en área social y dormitorios. -Puertos USB instalados en todas las áreas para carga directa de equipos electrónicos. Formas de pago: 60 al boleto + hasta 24 cuotas fijas USD 50 al boleto + hasta 18 cuotas fijas USD 100 al boleto - 3 descuento

Valor: USD 59850

Condiciones

Valor: USD 59850
Consulte
Imágenes
Más detalles
Llámenos
Detalles
Superficie cubierta: 40 m²
Superficie total: 42 m²
Dormitorios: 1
Baños completos: 1
Medidas